Описание
Характеристики
Отзывы
Описание
Описание
-
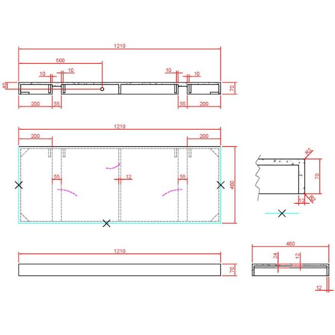
Boheme в сотрудничестве ArmadiArt с представляют коллекцию мебели FLAT. Раковины и столешницы выполнены из матового Corian. Раковины-моноблок выполнены в новаторском дизайне со скрытым сливом.
Размерный ряд раковин-моноблок 70см, 80см, 100см, 120см, 140см (возможна установка 2 смесителей).
Возможна установка встроенного в стену смесителя.
Столешницы и раковины по периметру имеют борт высотой 8см и скрытый крепеж. Подвесные тумбы и ArmadiArt выполнены в размерах 60см, 80см, 100см, 120см и 140см.
Цветовые опции тумб и пеналов представлены в каталогах и раскладках Vallessi. Корпусы тумб и пеналов произведены из МДФ и покрыты влагостойким винилом от холдинга LG.
В тумбах используется фурнитура Hettich, дно ящиков покрыто влагостойкой эко-кожей. -
Габариты 1210 x 460 x 70 мм.
- Материал искусственный камень
- Без готовых отверстий под смеситель
- Без отверстия под раковину
-
Гарантия: 1 год
- Италия
Характеристики
Бренд
Boheme
Код товара
127123
Форма
Прямоугольная
Коллекция
Flat
Монтаж
Накладной
Отзывы
Отзывов еще никто не оставлял


